Bürogebäude mit Altbau-Charme im beliebten Obermenzing
MünchenBeschreibung
-
Beschreibung:
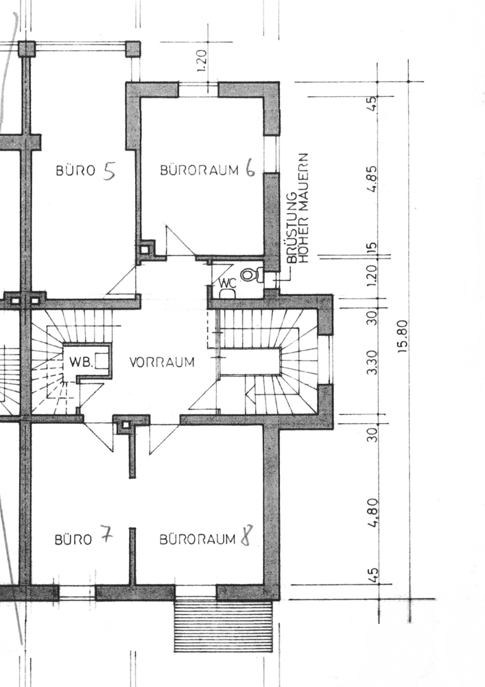
In verkehrsgünstiger und zentraler Lage nahe des Botanischen Gartens und Schloss Nymphenburg befindet sich diese Doppelhaushälfte, die komplett als Kanzlei genutzt wurde. Hohe Decken, ein repräsentatives Treppenhaus, großzügige Räume und ein großer Garten mit viel Grün machen den Charme dieser besonderen Immobilie aus.
Aus dem Baujahr 1908 stammt die Bausubstanz, die im Laufe der Jahrzehnte verändert wurde. Für einen Neubezug sind Renovierungs – und Sanierungsarbeiten erforderlich – dann könnte aus dem Gebäude ein stilvoller Altbau auf dem neuesten Stand der Technik werden. Denkbar ist eine Nutzung als Bürogebäude oder als Praxis oder als Kanzlei.
Auch eine gemischte Nutzung als Wohngebäude mit gewerblichen Räumen ist denkbar. Hierzu bedarf es einer Nutzungsänderung bei der Stadt München.Das Gebäude hat großes Potential und ist bezugsfrei.
Ausstattung
Das Gebäude ist in Ziegelbauweise errichtet und zum Teil sind noch Original-Materialien wie Innentüren vorhanden. Im Jahr 2004 wurde eine Gas-Heizung eingebaut, die Erzeugung von Warmwasser erfolgt elektrisch über Durchlauferhitzer. Das Dach wurde 2005 ertüchtigt.
Die Deckenhöhe beträgt ca. 2,90 m.Im Garten sind 8 Kfz-Stellplätze möglich.
Lage
Der Stadtteil Obermenzing liegt im Westen Münchens und grenzt direkt an den Stadtteil Nymphenburg an. Beide Bezirke sind durch historische Sehenswürdigkeiten geprägt: Schloß Blutenburg an der Würm und Schloß Nymphenburg mit seinen weitläufigen Parkanlagen. Das grüne, eher beschauliche Stadtviertel Obermenzing wird als familienfreundliche und grüne Gegend von seinen Bewohnern geschätzt.
An den Individualverkehr ist Obermenzing gut angeschlossen: Die Pippinger Straße in Nord-Süd-Richtung und die Verdistraße in Ost-West-Richtung schließen den Stadtteil an Pasing und Nymphenburg an, wobei die Verdistraße auch eine wichtige Funktion als Zubringer zur A 8 hat.
Trotz der großen und lebendigen Einfallstraßen bieten die weitläufigen Grünflächen und die historischen Gebäude einen großen Freizeit- und Erholungsfaktor.Die Immobilie befindet sich in zentraler Lage in direkter Nachbarschaft zu den Parkanlagen des Nymphenburger Schlosses und des städtischen Wäldchen Kapuzinerhölzl. Dennoch ist die Infrastruktur hervorragend: Gegenüber gibt es einen Bio-Markt und einen Lebensmittel-Discounter. Vielfältige Restaurants, Biergarten und Cafés finden sich entlang der Amalienburgstraße und sowie in der näheren Umgebung.
Gute Parkmöglichkeiten sind direkt vor der Immobilie vorhanden und die Anbindung an den öffentlichen Nahverkehr ist ebenfalls sehr gut: Um die Ecke liegt die Straßenbahnhaltestelle Amalienburgstraße, wo Sie per Tram oder Bus die Innenstadt sowie den Pasinger Bahnhof, die S-Bahn-Haltestelle Obermenzing erreichen. Über die Verdistraße gelangen Sie in wenigen Minuten zur Autobahn A8 Richtung Stuttgart.Sonstiges
Für weitere Informationen oder für einen Besichtigungstermin stehe ich gerne zur Verfügung.
Alle Angaben zur Immobilie wie Objektdaten, Pläne und Unterlagen beruhen auf Informationen des Eigentümers. Für die Vollständigkeit und Richtigkeit der Daten übernehmen wir keine Gewähr.
Bei Abschluss eines Kaufvertrages ist durch den Käufer eine Nachweis- bzw. Vermittlungsprovision in Höhe von 1,78 % inkl. gesetzlicher Mehrwertsteuer aus dem notariell beurkundeten Gesamt-Kaufpreis fällig und verdient. Dem Käufer ist bekannt, dass die Maklerin einen provisionspflichtigen Maklervertrag in gleicher Höhe mit dem Verkäufer abgeschlossen hat.
Objektdetails
- Objekt ID: HR_1553
- Baujahr: 1908
- Objektzustand: Renovierungsbedürftig
- Wohnfläche: Bürofl ca. 276m²
- Grundstücksfläche: ca. 604m²